ACOMPANHE-NOS     Campo Grande News no Facebook Campo Grande News no X Campo Grande News no Instagram Campo Grande News no TikTok Campo Grande News no Youtube
OUTUBRO, QUINTA  16    CAMPO GRANDE 31º

Capital

Obra da nova Depac Centro emperra em solo rochoso e entrega é adiada para 2026

Projeto de R$ 3 milhões avança em ritmo reduzido e passa por ajustes técnicos na fase de fundação

Por Bruna Marques | 16/10/2025 07:19
Obra da nova Depac Centro emperra em solo rochoso e entrega é adiada para 2026
Imagem aérea mostra o estágio atual da construção da nova sede da Depac Centro (Foto: Osmar Veiga)

A construção do novo prédio da Depac (Delegacia de Pronto Atendimento Comunitário) Centro, em Campo Grande, já segue pelo 4º ano e, pior, deve ficar apenas para 2026. A obra está emperrada por desafios técnicos desde o início. A própria Agesul (Agência Estadual de Gestão de Empreendimentos) indica o que parece falta de estudos antes de colocar as máquinas em campo.

RESUMO

Nossa ferramenta de IA resume a notícia para você!

A construção da nova sede da Delegacia de Pronto Atendimento Comunitário (Depac) Centro, em Campo Grande, enfrenta atrasos devido à presença de rochas no solo. A obra, inicialmente orçada em R$ 3 milhões, teve sua conclusão adiada para o segundo semestre de 2026. O projeto, localizado na Avenida Ricardo Brandão, prevê um espaço de 760 metros quadrados em um terreno de 2.581 metros quadrados doado pela Prefeitura. A estrutura contará com recepção, salas de delegados, cartórios e áreas adaptadas para acessibilidade, entre outros ambientes.

Segundo o órgão, durante a execução foram identificadas condições adversas do solo, com a presença de rochas nas escavações. O problema obrigou a reprogramação de etapas e a realização de novos estudos para garantir a continuidade segura do projeto.

De acordo com a agência, o terreno apresenta características íngremes e solo rochoso, o que exigiu ajustes técnicos e contribuiu para a ampliação do prazo contratual. Atualmente, a obra está em fase de fundação e estrutura e passa por um processo formal de reprogramação. A previsão de conclusão foi atualizada para o segundo semestre de 2026.

Anunciada em 2021, a construção da nova sede da Depac Centro foi orçada em R$ 3 milhões, com investimento do Governo do Estado. O prédio está sendo erguido na Avenida Ricardo Brandão, no Bairro Jardim dos Estados, em um terreno de 2.581 metros quadrados doado pela Prefeitura de Campo Grande. Em contrapartida, o município receberá dez novas viaturas para a Guarda Municipal.

Obra da nova Depac Centro emperra em solo rochoso e entrega é adiada para 2026
Vista da obra da nova Depac Centro, na Avenida Ricardo Brandão, em Campo Grande (Foto: Osmar Veiga)

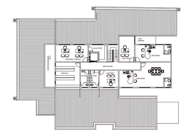
O projeto prevê um espaço de 760 metros quadrados, com recepção, salas de delegados, cartórios, setor de investigações, alojamentos, copa e ambientes adaptados para acessibilidade. A estrutura também deve incluir áreas para registro de ocorrências por policiais militares e atendimento a advogados e defensores públicos.

Quando anunciou o projeto, o então governador Reinaldo Azambuja (PSDB) havia determinado que a construção fosse feita em “tempo recorde”. No entanto, as dificuldades técnicas encontradas no terreno mudaram o ritmo da obra.

Segundo a Agesul, os ajustes no cronograma e nos estudos geotécnicos são fundamentais para garantir a segurança e a durabilidade da nova sede da delegacia, que segue em andamento.

Obra da nova Depac Centro emperra em solo rochoso e entrega é adiada para 2026
Planta baixa do novo prédio da Depac Centro no Jardim dos Estados. (Foto: Divulgação | Sejusp)

Receba as principais notícias do Estado pelo Whats. Clique aqui para acessar o canal do Campo Grande News e siga nossas redes sociais.